Villa, Netherlands

Project: Villa extension
Location: Private, The Netherlands
Type: Private
Status: Permit application

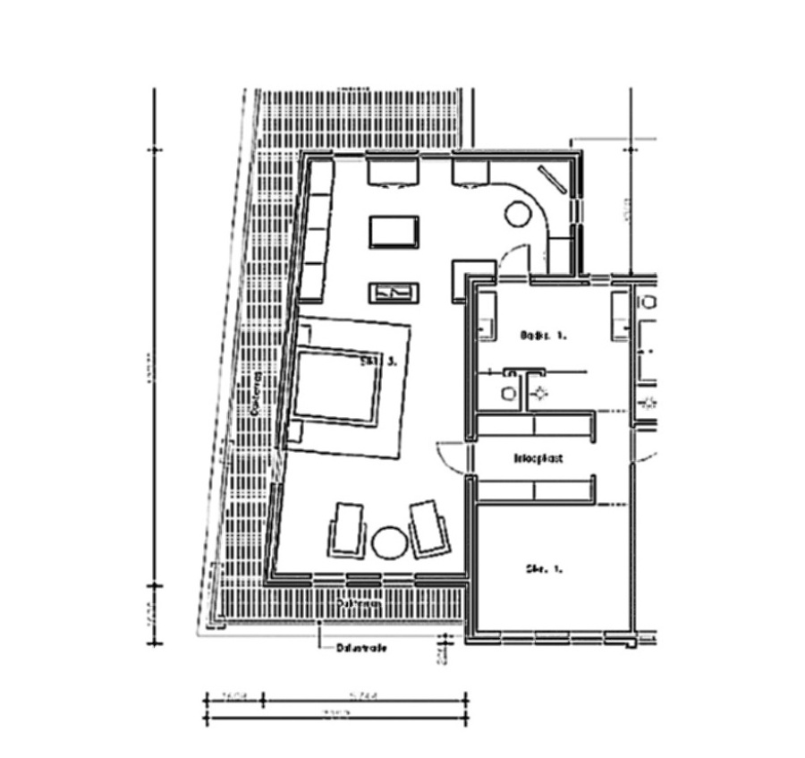
The client of this project asked us to design the expansion of their beautiful villa in order to create a more suitable master bedroom. By expanding the first floor a luxurious master bedroom was created. Part of the addition will be used for an extra walk-in closet and beauty corner overlooking the new roof terrace and is attached to the existing bathroom.